/
| Tên dự án: | Vinhomes Green City Hậu Nghĩa Long An |
| Chủ đầu tư: | Công Ty CP Phát Triển Thành Phố Xanh (thuộc Vingroup) |
| Vị trí: | Đường Quốc Lộ N2, Thị Trấn Hậu Nghĩa, Long An |
| Quy mô: | 197,22 ha |
| Dân số dự kiến: | 40.000 người |
| Các sản phẩm dự kiến: |
|
| Sản phẩm biệt thự: | 396 căn biệt thự đơn lập và song lập, thiết kế Tân Cổ Điển, cao 5 tầng |
| Sản phẩm nhà phố: | 4.176 căn nhà phố thương mại và liền kề, cao 5 tầng, shophouse |
| Sản phẩm chung cư: | 5 ô quy hoạch chung cư cao 25 tầng, diện tích 110.212 m² |
| Nhà ở xã hội: | Tổng diện tích 159.898 m², 5 ô quy hoạch nhà ở xã hội cao 5 tầng |
| Tiện ích nội khu: |
|
| Pháp lý: | Sổ hồng sở hữu lâu dài (NVN), 50 năm cho người nước ngoài |
| Thời gian hoàn thiện: | Năm 2030 |
| Website dự án: | https://batdongsanhochiminh.com.vn/ |
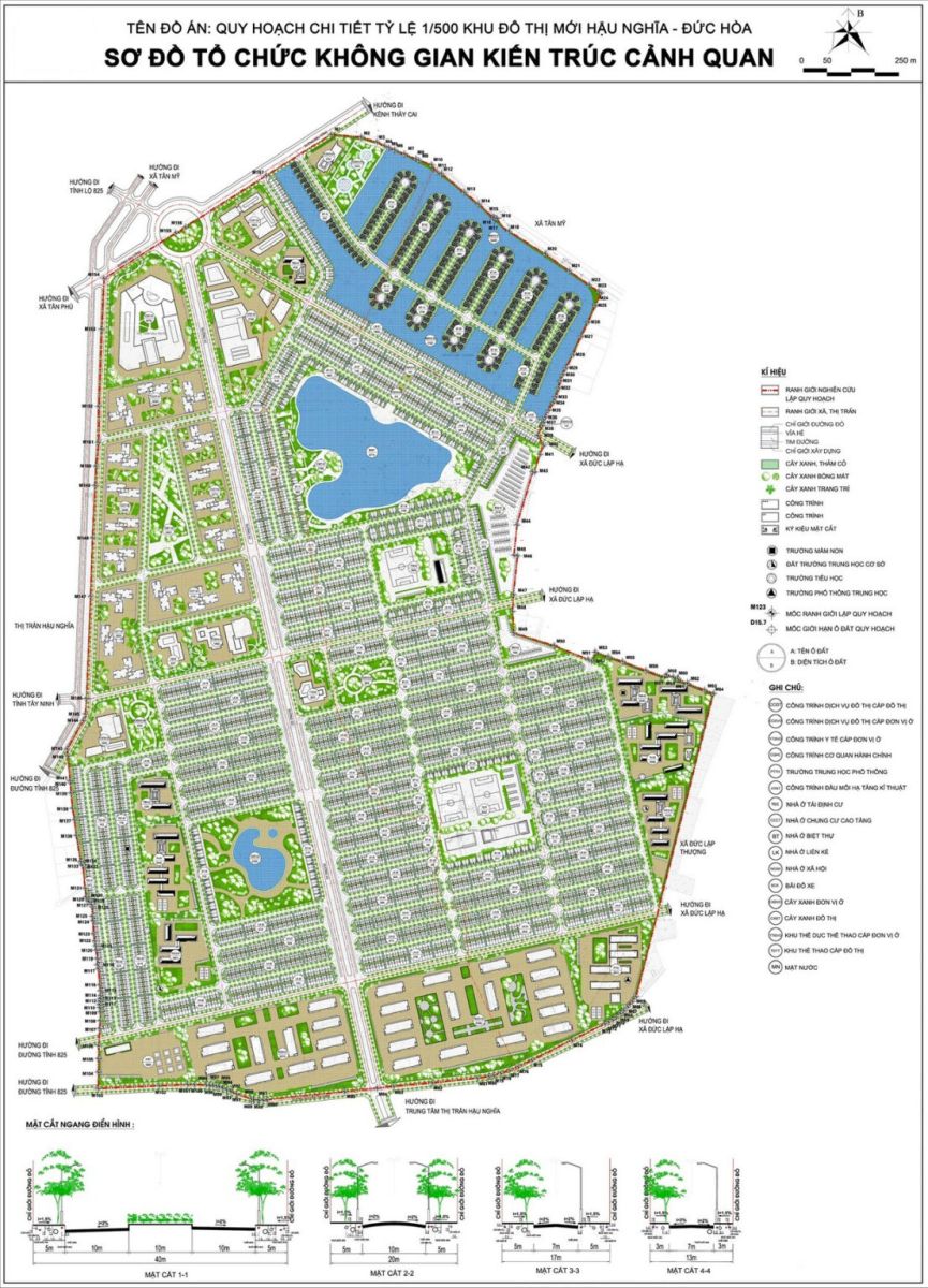
Vinhomes Green City Hậu Nghĩa Long An là dự án khu đô thị thông minh tiên phong tại khu vực phía Tây TP.HCM, tích hợp hoàn hảo giữa không gian sống xanh trong lành và hệ thống tiện ích hiện đại bậc nhất. Đây chính là nơi hội tụ mọi yếu tố mà cư dân thành thị đang khao khát: từ môi trường sống riêng tư, an yên đến chuỗi tiện ích nội khu phục vụ mọi nhu cầu từ cơ bản đến cao cấp – tất cả chỉ trong vài bước chân.
Được quy hoạch trên tổng diện tích lên tới 197,22 ha, Vinhomes Green City Long An phát triển 05 loại hình nhà ở chính:
Biệt thự đơn lập và song lập – không gian sống đẳng cấp, riêng tư tuyệt đối
Nhà phố thương mại (shophouse) – tiềm năng đầu tư, kinh doanh sinh lời vượt trội
Nhà liền kề – lựa chọn lý tưởng cho các gia đình trẻ hiện đại
Khu tái định cư – quy hoạch bài bản, đảm bảo chất lượng sống
Chung cư cao tầng và nhà ở xã hội – phù hợp với đa dạng đối tượng khách hàng

Sự đa dạng loại hình nhà ở này nhằm đáp ứng trọn vẹn "khẩu vị" của nhiều nhóm khách hàng khác nhau, từ người mua để ở đến nhà đầu tư, từ cá nhân có tài chính ổn định đến những người mua lần đầu.
Về mặt pháp lý, dự án có tên gọi chính thức là Khu đô thị Mới Hậu Nghĩa – Đức Hòa, được UBND tỉnh Long An phê duyệt theo Quyết định số 9763/QĐ-UBND ngày 20/10/2023. Đây là bảo chứng vững chắc cho tính pháp lý minh bạch và độ tin cậy của dự án.
Vinhomes Green City Hậu Nghĩa dự kiến hoàn thiện toàn diện trong vòng 6 năm và bắt đầu đưa vào vận hành từ năm 2029. Thời điểm hiện tại chính là cơ hội vàng để sở hữu sản phẩm tại dự án khi:
Nguồn cung còn nhiều, khách hàng có nhiều lựa chọn về vị trí & loại hình
Giá bán ở giai đoạn đầu – tiềm năng tăng giá cao theo thời gian
Chính sách bán hàng và ưu đãi cực kỳ hấp dẫn từ chủ đầu tư Vingroup
Vinhomes Green City Hậu Nghĩa Long An tọa lạc tại một trong những khu vực chiến lược nhất của huyện Đức Hòa, tỉnh Long An. Vị trí đắc địa của dự án trải dài trên địa bàn ba đơn vị hành chính trọng điểm gồm: thị trấn Hậu Nghĩa, xã Đức Lập Thượng và xã Tân Mỹ. Chính sự giao thoa này giúp Vinhomes Green City sở hữu lợi thế vượt trội cả về kết nối giao thông, tiềm năng phát triển đô thị, và mức độ tăng giá trong tương lai.
Dự án được quy hoạch và bao quanh bởi các khu dân cư hiện hữu, tạo nên một hệ sinh thái sống sẵn có, ổn định và hài hòa:
Phía Bắc: giáp khu dân cư đường Bàu Công
Phía Nam: giáp khu dân cư đường Nguyễn Thị Hạnh
Phía Đông: giáp khu dân cư xã Đức Lập Thượng
Phía Tây: giáp khu dân cư thị trấn Hậu Nghĩa và Quốc lộ N2
Dự án chỉ cách trung tâm TP.HCM khoảng 40km về phía Tây Nam, dễ dàng kết nối với các tuyến đường huyết mạch như Quốc lộ 1A, Quốc lộ 22 và cao tốc TP.HCM – Trung Lương. Chính yếu tố này sẽ giúp cư dân di chuyển nhanh chóng đến TP.HCM và các tỉnh miền Tây Nam Bộ, mang đến cơ hội giao thương, làm việc và phát triển kinh tế vượt trội.
Ngoài ra, dự án còn nằm tại điểm giao thoa của nhiều tuyến đường quan trọng trong khu vực, giúp kết nối linh hoạt với các khu đô thị và khu công nghiệp lớn, đáp ứng nhu cầu sinh sống và kinh doanh của cư dân.
Việc chọn huyện Đức Hòa làm nơi phát triển Vinhomes Green City không phải là lựa chọn ngẫu nhiên. Trong bối cảnh nhà đất TP.HCM đang ngày càng khan hiếm và giá cao, khu vực giáp ranh như Đức Hòa đang trở thành điểm đến lý tưởng để giãn dân, đồng thời là kênh đầu tư bất động sản mới mẻ và hấp dẫn.
Từ Vinhomes Green City Đức Hòa, cư dân dễ dàng di chuyển kết nối vùng chỉ trong khoảng 70–90 phút nhờ vào hệ thống giao thông hiện hữu như:
Đường tỉnh ĐT823, ĐT824, ĐT825
Quốc lộ 1A, Quốc lộ 22, Quốc lộ N2
Cao tốc Trung Lương – TP.HCM
Vành đai 4 – tuyến huyết mạch kết nối toàn vùng kinh tế trọng điểm phía Nam
Không chỉ sở hữu vị trí chiến lược, Đức Hòa còn được tỉnh Long An định hướng trở thành đô thị vệ tinh của TP.HCM, với các chính sách đẩy mạnh phát triển hạ tầng, công nghiệp, thương mại.
Hiện toàn huyện có tới:
13 khu công nghiệp lớn
20 cụm công nghiệp tập trung
Chỉ trong bán kính 3 – 5km quanh Vinhomes Green City, cư dân đã dễ dàng tiếp cận các khu công nghiệp lớn như:
KCN Đức Hòa
KCN Tân Đức
KCN Xuyên Á
KCN Đức Hòa Đông
Những khu công nghiệp này thu hút lượng lao động khổng lồ, tạo ra nguồn cầu nhà ở ổn định, là yếu tố then chốt thúc đẩy tăng giá trị bất động sản và khả năng cho thuê sinh lời cao trong tương lai.
Vị trí của Vinhomes Green City Hậu Nghĩa Long An được giới chuyên gia đánh giá là đắc địa bậc nhất khu vực Đức Hòa, khi tọa lạc giữa lòng khu dân cư hiện hữu và chỉ cách các tiện ích thiết yếu trong đời sống hàng ngày vài phút di chuyển. Nhờ nằm gần nhiều trục đường lớn, dự án không chỉ thuận tiện cho việc an cư mà còn cực kỳ tiềm năng về đầu tư lâu dài.
Từ Vinhomes Green City Đức Hòa, cư dân có thể dễ dàng tiếp cận các trung tâm hành chính – kinh tế – dịch vụ quan trọng:
Cách Bệnh viện Đa khoa khu vực Hậu Nghĩa: 3km
Cách trung tâm thị trấn Đức Hòa: 13km
Cách TP. Hồ Chí Minh: 40km
Cách tỉnh Tây Ninh: 40km
Đây là các khoảng cách vàng giúp cư dân vừa hưởng trọn tiện nghi hiện đại vừa tránh xa sự ồn ào, chật chội của trung tâm đô thị lớn.
Từ khu đô thị, cư dân dễ dàng di chuyển đến các địa phương như Đức Huệ, Bến Lức, TP. Tân An, TP. HCM, Tây Ninh… thông qua hệ thống giao thông hiện hữu và đang mở rộng, bao gồm:
Đường tỉnh ĐT822, ĐT823, ĐT825
Quốc lộ N2
Cao tốc Trung Lương – TP.HCM
Vành đai 4 – tuyến giao thông huyết mạch liên kết toàn vùng
Nằm giữa khu dân cư hiện hữu, Vinhomes Green City Hậu Nghĩa Long An dễ dàng tiếp cận hàng loạt tiện ích ngoại khu thiết yếu:
Chợ, trường học, bệnh viện
Ngân hàng, siêu thị, trung tâm thương mại
Các cơ quan hành chính, khu vui chơi – giải trí
Tất cả tạo nên một hệ sinh thái sống hoàn chỉnh, đáp ứng đầy đủ mọi nhu cầu từ sinh hoạt hàng ngày đến học tập, y tế và mua sắm.
Sở hữu vị trí “cận lộ, cận công nghiệp, cận tiện ích”, Vinhomes Green City được xem là viên ngọc sáng giữa lòng Long An, đặc biệt trong bối cảnh hạ tầng khu vực ngày càng phát triển mạnh mẽ.
Gần các khu công nghiệp lớn như KCN Tân Đức, KCN Xuyên Á, KCN Đức Hòa, KCN Đức Hòa Đông…
Nằm trong vùng phát triển kinh tế – xã hội chiến lược của tỉnh Long An
Lợi thế tiếp cận nguồn lao động lớn và mật độ dân cư ngày càng tăng, kéo theo nhu cầu nhà ở tăng cao liên tục
Tất cả các yếu tố trên góp phần giúp giá trị bất động sản tại Vinhomes Green City Hậu Nghĩa không ngừng tăng trưởng ổn định theo thời gian.
Nằm nổi bật ở phía Bắc dự án, ngay cạnh khu nhà ở cao tầng hiện đại, Vincom Mega Mall chính là biểu tượng trung tâm thương mại – giải trí cao cấp tại Vinhomes Green City Long An, đồng thời cũng là một trong những tiện ích mang tính nhận diện thương hiệu đặc trưng của hệ sinh thái Vinhomes.
Không chỉ đơn thuần là nơi mua sắm, Vincom Mega Mall tại Vinhomes Green City còn là trái tim sôi động của toàn khu đô thị – nơi hội tụ:
Các thương hiệu thời trang, mỹ phẩm, phụ kiện nổi tiếng trong nước và quốc tế
Chuỗi siêu thị, nhà hàng, quán café cao cấp
Khu vui chơi trẻ em, khu giải trí, rạp chiếu phim hiện đại
Không gian sự kiện, tổ chức hoạt động cộng đồng
Với thiết kế đẳng cấp, không gian mở và hiện đại, Vincom Mega Mall Vinhomes Green City mang đến trải nghiệm sống trọn vẹn trong từng bước chân – nơi cư dân có thể mua sắm, ăn uống, giải trí, gặp gỡ bạn bè và thư giãn ngay trong nội khu mà không cần phải di chuyển ra bên ngoài.
Một trong những điểm nhấn quan trọng giúp Vinhomes Green City Hậu Nghĩa Long An khẳng định vị thế dẫn đầu tại khu Tây TP.HCM chính là việc sở hữu hệ tiện ích "All-in-one" đỉnh cao, đáp ứng trọn vẹn mọi nhu cầu sống – làm việc – nghỉ dưỡng của cư dân trong nội khu.
Với mật độ xây dựng chỉ 25%, phần lớn quỹ đất của Vinhomes Green City được dành để phát triển:
Tiện ích nội khu đẳng cấp
Cảnh quan sinh thái xanh mát
Hạ tầng giao thông nội bộ thông thoáng
Không gian cộng đồng và hoạt động ngoài trời
Con số ấn tượng này không chỉ thể hiện triết lý phát triển nhân văn mà còn cho thấy tầm nhìn dài hạn của chủ đầu tư Vingroup: xây dựng một khu đô thị chuẩn sống mới, nơi mỗi bước chân đều gắn liền với trải nghiệm sống tiện nghi, lành mạnh và hiện đại.
Dựa trên mô hình "All-in-one", Vinhomes Green City Đức Hòa tích hợp hàng loạt tiện ích mà cư dân thành thị luôn mong ước – từ những nhu cầu cơ bản nhất đến các trải nghiệm cao cấp, bao gồm:
Công viên trung tâm xanh mát, lối đi bộ, khu thiền tĩnh tâm
Hồ cảnh quan sinh thái – nơi điều hòa vi khí hậu và mang đến không gian thư giãn lý tưởng
Khu thể thao ngoài trời: sân bóng, sân tennis, khu tập gym đa năng
Hệ thống trường học liên cấp Vinschool, trung tâm y tế, khu chăm sóc sức khỏe
Khu thương mại – dịch vụ, shophouse sầm uất, nhà hàng – café – siêu thị
Khu vui chơi trẻ em, khu BBQ, clubhouse dành cho cộng đồng
Tất cả tạo nên một hệ sinh thái sống khép kín – đồng bộ – hiện đại, đúng với tinh thần “thành phố thu nhỏ” trong lòng Hậu Nghĩa, Đức Hòa, Long An.
Với hệ tiện ích được đầu tư bài bản, Vinhomes Green City Hậu Nghĩa Long An đang dần định hình một chuẩn mực sống mới: sống không cần rời khỏi khu đô thị vẫn có đủ mọi điều bạn cần. Đây chính là điểm khác biệt lớn so với những dự án nhà ở thông thường – và cũng là lý do vì sao Vinhomes Green City luôn nằm trong top dự án được săn đón nhiều nhất tại Long An hiện nay.
Nằm nổi bật ở phía Bắc dự án, ngay cạnh khu nhà ở cao tầng hiện đại, Vincom Mega Mall chính là biểu tượng trung tâm thương mại – giải trí cao cấp tại Vinhomes Green City Long An, đồng thời cũng là một trong những tiện ích mang tính nhận diện thương hiệu đặc trưng của hệ sinh thái Vinhomes.
Không chỉ đơn thuần là nơi mua sắm, Vincom Mega Mall tại Vinhomes Green City còn là trái tim sôi động của toàn khu đô thị – nơi hội tụ:
Các thương hiệu thời trang, mỹ phẩm, phụ kiện nổi tiếng trong nước và quốc tế
Chuỗi siêu thị, nhà hàng, quán café cao cấp
Khu vui chơi trẻ em, khu giải trí, rạp chiếu phim hiện đại
Không gian sự kiện, tổ chức hoạt động cộng đồng
Với thiết kế đẳng cấp, không gian mở và hiện đại, Vincom Mega Mall Vinhomes Green City mang đến trải nghiệm sống trọn vẹn trong từng bước chân – nơi cư dân có thể mua sắm, ăn uống, giải trí, gặp gỡ bạn bè và thư giãn ngay trong nội khu mà không cần phải di chuyển ra bên ngoài.
Giữa lòng khu đô thị hiện đại Vinhomes Green City Hậu Nghĩa Long An, THE GREAT LAKE hiện lên như một viên ngọc xanh lấp lánh, không chỉ mang vẻ đẹp của một công trình cảnh quan đắt giá, mà còn đóng vai trò là lá phổi điều hòa vi khí hậu, mang đến sự cân bằng và hài hòa cho toàn khu đô thị.
Không chỉ là yếu tố sinh thái, THE GREAT LAKE tại Vinhomes Green City còn được thiết kế như một công viên nước mở rộng, tích hợp các tiện ích nghỉ ngơi – thư giãn như:
Đường dạo bộ ven hồ lãng mạn
Khu tập thể dục ngoài trời
Ghế ngồi thư giãn, sân cỏ tổ chức sự kiện
Chòi nghỉ, đài phun nước, cầu cảnh quan…
Đây sẽ là nơi lý tưởng để cư dân tản bộ cuối ngày, đạp xe buổi sáng, trò chuyện cùng người thân hoặc đơn giản là tận hưởng phút giây bình yên giữa thiên nhiên trong lành.
Với vị trí trung tâm và diện tích mặt nước rộng mở, THE GREAT LAKE mang đến tầm nhìn đắt giá cho những dãy biệt thự, nhà phố cao cấp nằm ven hồ. Từ trên cao nhìn xuống, khung cảnh mặt hồ phẳng lặng hòa cùng kiến trúc đô thị hiện đại tạo nên bức tranh phong thủy cân bằng và tràn đầy sinh khí – một trong những yếu tố giúp gia tăng giá trị tài sản theo thời gian.
Tại Vinhomes Green City Hậu Nghĩa Long An, không gian sống không chỉ gói gọn trong bốn bức tường mà được mở rộng ra bên ngoài, nơi thiên nhiên, vận động và gắn kết cộng đồng hòa làm một. Khu trung tâm tiện ích ngoài trời chính là trái tim sinh động của toàn khu đô thị, nơi cư dân mọi lứa tuổi có thể sống năng động, khỏe mạnh và thư giãn trọn vẹn mỗi ngày.


Vinhomes Green City Hậu Nghĩa Long An nằm tại điểm giao thoa giữa 6 trục hạ tầng chiến lược, được đánh giá là vị trí vàng không chỉ của Đức Hòa – Long An mà còn của toàn vùng kinh tế trọng điểm phía Nam. Đây là tọa độ giao thương – kết nối vùng – đầu tư dài hạn lý tưởng, đón đầu làn sóng đô thị vệ tinh và hạ tầng liên kết vùng do Chính phủ chủ trương.
Kết nối cửa khẩu quốc gia Mộc Bài – Mỹ Quý Tây
Liên kết các khu công nghiệp, khu đô thị vùng Đức Hòa – Bến Lức – TP.HCM
Là trục phát triển công nghiệp – đô thị then chốt trong chiến lược quy hoạch Long An
Tuyến đường vành đai chiến lược kết nối liên vùng giữa TP.HCM – Long An – Bình Dương – Đồng Nai
Tăng cường tính liên kết vùng, giảm áp lực giao thông đô thị trung tâm
Kết nối từ khu vực cửa khẩu đến trung tâm kinh tế – công nghiệp của Bến Lức và TP.HCM
Hỗ trợ phát triển đô thị hóa theo chiều sâu
Tuyến đường chiến lược nối Long An với các vùng sản xuất nông nghiệp và logistic
Gia tăng giá trị khu vực bằng kết nối hậu cần – giao thương hàng hóa
Mạng lưới giao thông huyết mạch nối Long An với miền Tây Nam Bộ và Tây Nguyên
Tăng tốc kết nối vùng đồng bằng sông Cửu Long với trung tâm TP.HCM
Tuyến kết nối TP.HCM – Long An – Tiền Giang, rút ngắn thời gian lưu thông về miền Tây
Thúc đẩy tiềm năng phát triển bất động sản ven đô
Vinhomes Green City Hậu Nghĩa Long An không chỉ là khu đô thị sở hữu vị trí vàng và tiện ích đẳng cấp, mà còn mang đến bộ sưu tập các mẫu nhà thiết kế tối ưu, hiện đại và linh hoạt nhằm phục vụ đa dạng nhu cầu sử dụng của cư dân từ ở đến kinh doanh, từ gia đình trẻ đến giới đầu tư.
Diện tích đất: 50 m²
Tổng diện tích sàn xây dựng: 173.4 m²
Thiết kế 4 tầng, gồm phòng khách, bếp, 4 phòng ngủ, 4 WC, sân thượng thoáng mát.
Phù hợp cho gia đình trẻ, tối ưu chi phí nhưng vẫn đầy đủ tiện nghi.
Diện tích đất: 65 m²
Tổng diện tích sàn xây dựng: 220.5 m²
Thiết kế 4 tầng, gồm 5 phòng ngủ, phòng khách, bếp, khu giặt phơi và khoảng sân riêng.
Lý tưởng cho những gia đình đa thế hệ hoặc gia đình muốn có thêm không gian sinh hoạt riêng biệt.

Diện tích đất: 114.4 m²
Tổng diện tích sàn xây dựng: 384.1 m²
Thiết kế 4 tầng, trong đó tầng trệt là không gian kinh doanh linh hoạt, các tầng trên là khu vực sinh hoạt gia đình.
Vị trí mặt tiền rộng, phù hợp mở quán café, nhà thuốc, spa, showroom hoặc cho thuê thương mại.
Nằm trong phân khu The Forest – tâm điểm thương mại của toàn dự án, nơi có lưu lượng khách qua lại cao.
Diện tích đất: 132.9 m²
Tổng diện tích sàn xây dựng: 258.8 m²
Thiết kế sang trọng 4 tầng, gồm 4 phòng ngủ, phòng sinh hoạt chung, sân vườn, ban công rộng mở.
Không gian riêng tư – cao cấp, tầm nhìn đẹp ra hồ trung tâm, thích hợp cho gia chủ yêu thích sự biệt lập và đẳng cấp.





Dự án Vinhomes Green City Hậu Nghĩa – Đức Hòa, Long An chính thức ra mắt thị trường vào ngày 18/6/2025. Hiện tại giá bán và chính sách ưu đãi trong giai đoạn đầu được cập nhật mới nhất.
Chúng tôi sẽ liên tục cập nhật những thông tin mới nhất – chính xác nhất.


👉 Vui lòng theo dõi website https://batdongsanhochiminh.com.vn/ hoặc liên hệ hotline: 0837977978 để không bỏ lỡ thời điểm vàng sở hữu bất động sản tại khu đô thị đáng sống bậc nhất Long An trong năm 2025.
Vinhomes Green City Hậu Nghĩa không đơn thuần là một dự án bất động sản – mà là lời khẳng định về chất sống tương lai, nơi mọi giá trị hiện đại, xanh – thông minh – bền vững cùng hội tụ. Dưới đây là những giá trị cốt lõi tạo nên đẳng cấp khác biệt cho đại đô thị này:


1. Vinhomes Green City Long An đã có pháp lý đầy đủ chưa?
Dự án có quy hoạch 1/500, giấy tờ minh bạch, cam kết bàn giao đúng tiến độ, đặt cọc ký hợp đồng mua bán sau 10 ngày.
2. Có thể đầu tư cho thuê không?
Hoàn toàn khả thi! Nhu cầu thuê tại khu vực giáp ranh TP.HCM đang tăng mạnh, đặc biệt với chuyên gia nước ngoài làm việc tại khu công nghiệp Đức Hòa, Tân Đô, Hải Sơn, và 300 ngàn dân tại đức hòa.
3. Mức thanh toán tối thiểu là bao nhiêu?
Chỉ cần thanh toán 30% ban đầu, phần còn lại ngân hàng hỗ trợ trả góp linh hoạt.
4. Bao giờ bàn giao?
Giai đoạn 1 dự kiến bàn giao nhà hoàn thiện vào quý IV/2026.
Vinhomes Green City Long An không đơn thuần là bất động sản – đó là một hệ sinh thái sống hiện đại, thông minh và bền vững. Khi xu hướng đầu tư đang dịch chuyển ra vùng ven, khi hạ tầng đang “chạy đua” về phía tây, thì việc sở hữu một căn nhà tại đây là sự lựa chọn đón đầu cơ hội, đón đầu tăng trưởng.
Eaton Park Quận 2 – dự án căn hộ cao cấp do Gamuda Land phát triển, tọa lạc tại vị trí vàng mặt tiền Mai Chí Thọ, trung tâm TP. Thủ Đức. Với thiết kế Biophilic hài hòa thiên nhiên, tiện ích nội khu đa dạng và pháp lý minh bạch, đây là cơ hội đầu tư bền vững và lựa chọn an cư lý tưởng cho giới chuyên gia và gia đình hiện đại. Giá trị gia tăng rõ nét, thanh khoản cao – Eaton Park xứng đáng là điểm đến của nhà đầu tư thông thái.
Khám phá dự án Vinhomes Green Paradise Cần Giờ: khu đô thị sinh thái tích hợp ven biển, giá trị nghỉ dưỡng cao cấp, sinh lời lâu dài.
The Global City được kỳ vọng trở thành trung tâm mới (New Downtown) của TP.HCM. Với quy mô 117.4ha, dự án The Global City không chỉ là nơi an cư đẳng cấp mà còn là biểu tượng của sự thịnh vượng...
Vinhomes Grand Park Quận 9 – Đại đô thị thông minh, xanh mát và đáng sống bậc nhất TP.HCM. Khám phá Vinhomes Grand Park Quận 9 – đô thị xanh – thông minh – đáng sống với pháp lý rõ ràng, tiềm năng đầu tư – nghỉ dưỡng – an cư tuyệt vời.
Grand Marina Saigon - khu căn hộ hàng hiệu đẳng cấp quốc tế tại Quận 1, sở hữu vị trí vàng, tiện ích 5 sao, phong cách sống thượng lưu đích thực.
The Marq - Dự án căn hộ cao cấp tại Quận 1, TP. Hồ Chí Minh, với tổng diện tích 5,146.4 m2. Được phát triển bởi HongKong Land, bao gồm 2 block cao 26 tầng với 515 căn hộ. Các loại căn hộ từ 1 – 4 phòng ngủ và Penthouse. Tiện ích nội khu sang trọng, từ hồ bơi, phòng gym, sân chơi trẻ em đến vườn thiền. Giao nhà vào năm 2022, nằm gần các địa điểm nổi tiếng như sân bay Tân Sơn Nhất, Diamond Plaza, và Vincom Đồng Khởi.
Khám phá De La Sol Quận 4, dự án căn hộ cao cấp của CapitaLand, với vị trí vàng tại trung tâm TP.HCM. Tận hưởng cuộc sống tiện nghi với hơn 50 tiện ích đẳng cấp, thiết kế hiện đại và không gian sống tuyệt vời. Tìm hiểu ngay!
T&T City Millennia – đại đô thị ven sông quy mô hơn 267ha tại Long Hậu, Cần Giuộc, Long An, chỉ cách trung tâm TP.HCM khoảng 20 phút di chuyển. Dự án được đầu tư bởi Tập đoàn T&T Group, quy hoạch hiện đại với hơn 7.800 sản phẩm đa dạng: nhà phố liền kề, shophouse, biệt thự. Nổi bật với không gian xanh chiếm tới 30% diện tích, hệ thống tiện ích đẳng cấp từ công viên ven sông, phố ẩm thực, trường học liên cấp đến clubhouse và bến thuyền, T&T City Millennia mang đến một chuẩn mực sống khác biệt cho cư dân và tiềm năng đầu tư hấp dẫn tại cửa ngõ Nam Sài Gòn.
Khám phá GS Metro City Nhà Bè – Zeitgeist là khu đô thị cao cấp với biệt thự, nhà phố, căn hộ và shophouse, tiện ích đa dạng, vị trí kết nối Quận 1 & Phú Mỹ Hưng.